Presentamos este exclusivo proyecto de vivienda unifamiliar situado en la prestigiosa urbanización Atalaya del Port de Sóller. Es una exclusiva urbanización ubicada en la costa noroeste de Mallorca. Con su posición elevada, ofrece impresionantes vistas panorámicas del Puerto de Sóller, las montañas y el mar Mediterráneo. Este enclave tranquilo y apartado proporciona un entorno perfecto para aquellos que buscan lujo y serenidad, mientras disfrutan de la proximidad a la playa y a los servicios locales. Con su belleza natural y su entorno pintoresco, Atalaya del Port de Sóller es un lugar ideal para vivir en Mallorca.
Este proyecto destaca por su singular diseño, funcionalidad y sus impresionantes vistas sobre la bahía y el valle de Sóller, todo ello en un entorno tranquilo y apartado.
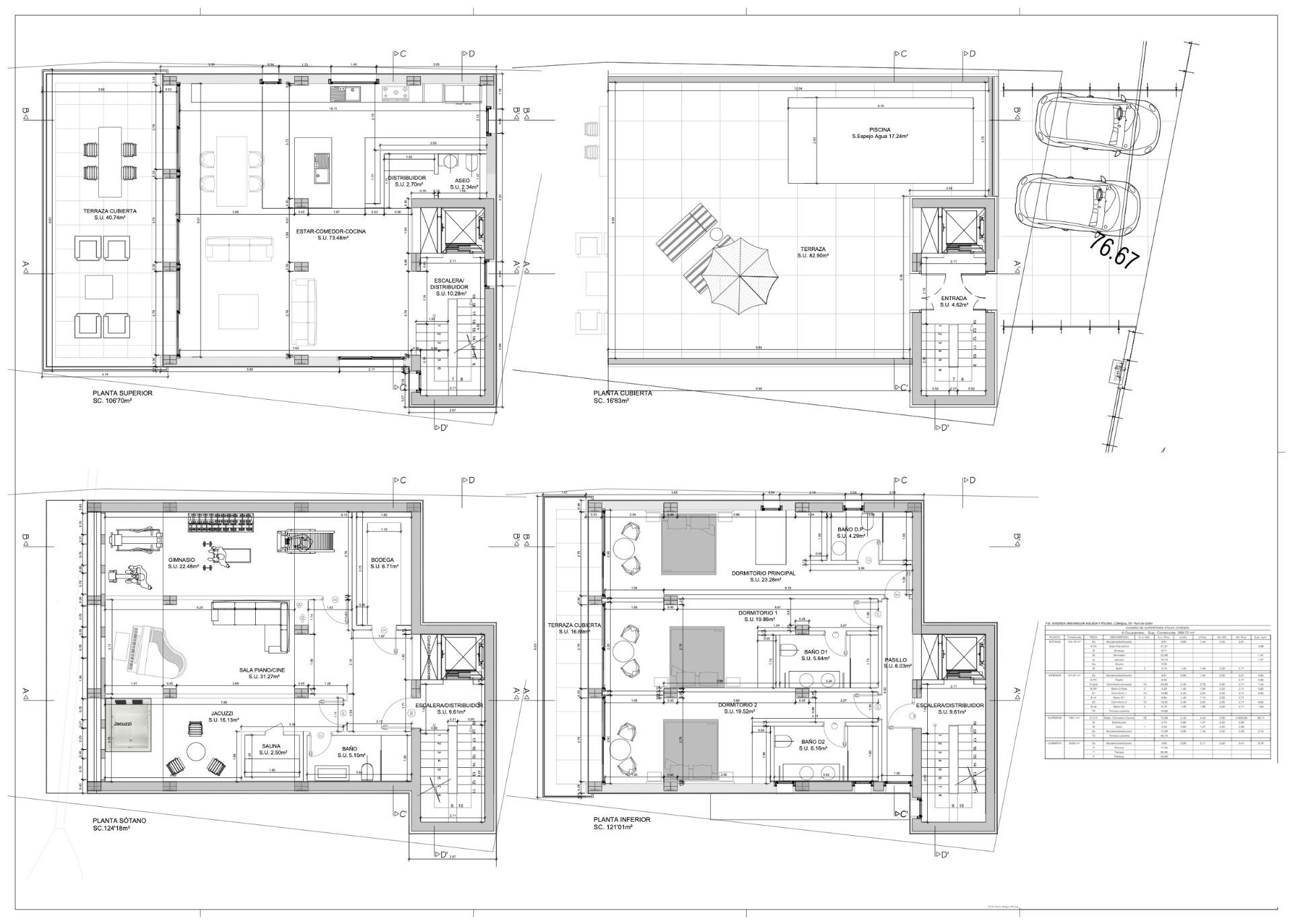
Distribución del proyecto para la Edificación:
• Terraza Panorámica: Superficie de 84,71 m², piscina de 22,85 m² y acceso principal al edificio, conduciendo a las escaleras abiertas y al ascensor.
• Planta Superior: Con 109,87 m² construidos, incluirá una cocina moderna, aseo, comedor y sala de estar. Desde aquí se accederá a una terraza exterior con porche de 37,6 m². Los amplios ventanales ofrecerán vistas espectaculares al este, sur y oeste, abarcando las montañas del valle y el Puerto de Sóller.
• Planta Inferior: Con 124,18 m² construidos, albergará tres amplias habitaciones, cada una con baño en suite. Todas las habitaciones gozarán de vistas impresionantes a las montañas del valle y al Puerto de Sóller.
• Planta Sótano: Con 124,18 m² construidos, incluirá una sauna, gimnasio, bodega y sala de máquinas.
Superficie Total:
• Construcción Cerrada: 398 m².
• Terrazas Abiertas y Solárium: 134,79 m².
• Piscina: 22,85 m².
Parcela:
• Superficie: 590,48 m² con una pronunciada pendiente y acceso desde la calle Bélgica.
• Servicios: Electricidad, alcantarillado, red de agua potable, teléfono y fibra óptica.
• Aparcamiento: Espacio para tres coches en la zona superior de la parcela, con sala de máquinas debajo de esta plataforma.
Jardín:
• El resto del solar estará dedicado a un jardín mediterráneo, dispuesto en bancales y escaleras de piedra natural.
Instalaciones Relevantes:
• Contará con calefacción por suelo radiante y aire acondicionado en toda la vivienda.
• También contará con descalcificador general, cortineros exteriores automatizados, domótica general y ascensor.
Acabados de Alta Calidad:
• Carpintería exterior de aluminio anodizado con acristalamiento con cámara.
• Carpintería interior, incluida la cocina, y suelos de roble rústico en las habitaciones.
• Baldosas porcelánicas en suelos y alicatados de calidad Porcelanosa.
• Sanitarios y griferías de diseño.
Esta propiedad es una oportunidad única para quienes buscan una vida de lujo en un entorno natural impresionante. Contáctanos para más información y para programar una visita a este espectacular proyecto de vivienda en Atalaya del Port de Sóller.



















