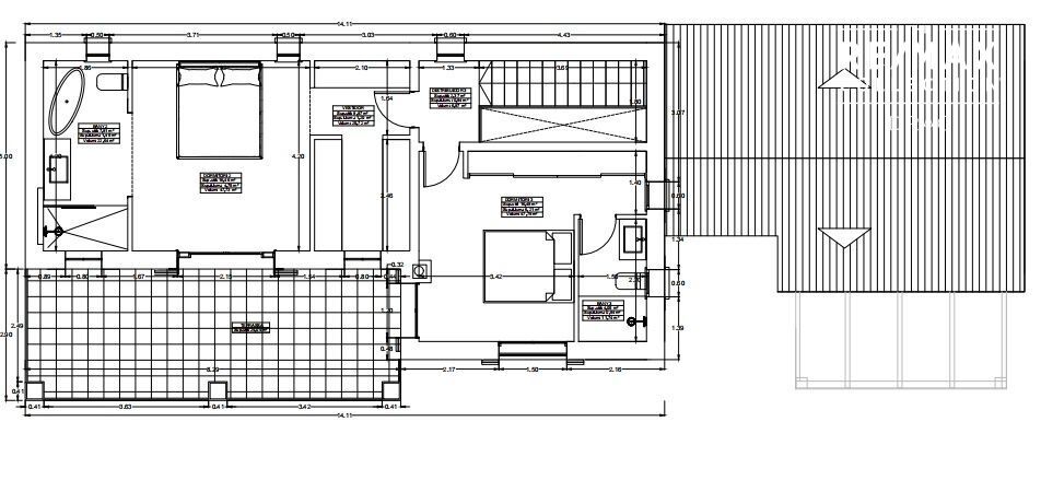
In the heart of rural Mallorca, this 14,400 m² estate offers the opportunity to build an elegant 275 m² house with an approved project that combines tradition and modernity. Designed to make the most of its surroundings, the house will feature three spacious bedrooms, each with its own en-suite bathroom, spread over two floors. The ground floor will house a bright living-dining room connected to a modern open kitchen, all with direct access to a large terrace that surrounds a 35 m² pool. This outdoor space, with a cozy pergola, is perfect for enjoying the Mediterranean climate and open views.The layout is designed to offer comfort and functionality, with a bedroom on the ground floor ideal for guests, and the other two on the first floor, where the master bedroom features a private balcony with panoramic views.Connection to Campos and its ServicesThe location of the estate allows you to enjoy the tranquility of the countryside without sacrificing proximity to essential services. Just a few minutes by bike or on foot, the center of Campos offers everything you need for daily life: supermarkets, pharmacies, shops, and a variety of restaurants and cafes where you can taste local cuisine. Additionally, Campos has modern sports and leisure facilities, including tennis courts, paddle courts, and a municipal gym, making it an ideal place for those looking to maintain an active lifestyle.Natural Surroundings and Nearby AreasBeyond urban services, the estate is situated in a beautiful natural environment. One of the main attractions of this property is its proximity to the famous Es Trenc beach, a true natural paradise with turquoise waters and white sands, ideal for those who enjoy the beach and nature in its purest form. Furthermore, the estate is only 30 minutes by car from Palma, the island's capital, providing easy access to the airport and everything the vibrant city has to offer, from culture and gastronomy to shopping and entertainment.This rustic estate represents a unique opportunity to live in a privileged setting, where modernity and the Mediterranean lifestyle come together to offer an exceptional home in Mallorca.












